Giá bán: Liên hệ   
 
 
   
 
Bàn nâng pin xe điện Kawasami KW-1200.1800EVL dùng điện
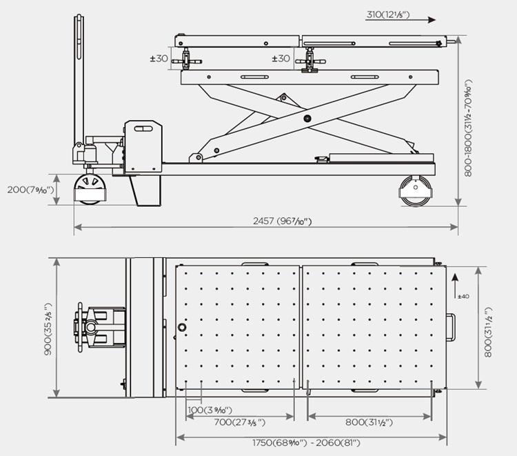
Model: KW-1200.1800EVL
Xuất xứ: Kawasami - Trung Quốc
	Bàn nâng hỗ trợ tháo lắp pin xe ô tô điện Kawasami KW-1200.1800EVL dùng điện
	Các tính năng an toàn:
	1. Dễ dàng chuyển mà không cần cài đặt
	2. Độ cao từ 1100 -1800mm
	3. Bàn nâng có kiểu khí nén hoặc kiểu điện
	4. Bàn điều chỉnh góc, trượt trái phải, ngang dọc, được chế tạo để đáp ứng liền mạch với đáy pin
	5. Thuận tiện khi định vị bàn và xách pin sang bên phải đặt nằm ngang trong 30mam mà không cần di chuyển bàn nâng
	6. Bàn nâng còn được lắp ráp linh kiện chất lượng cao để nâng nhanh & chính xác
	Bàn nâng dạng cắt kéo
	Phát hành tự động khóa
	Nâng pin Ev
	Sản phẩm Nâng pin Ev
	Mã sản phẩm KW-1200.1800EVL
	Công suất 1,2 T
	Tối đa. chiều cao nâng 1800 mm (70,9")
	Tối thiểu. chiều cao 800 mm (31,5")
	Chiều dài cơ bản 1550 mm
	Tổng chiều rộng 800 mm (31,5")
	






 Chia sẻ
 Chia sẻ
















